曼聯傳媒工作室裝修
項目概況 PROJECT OVERVIEW
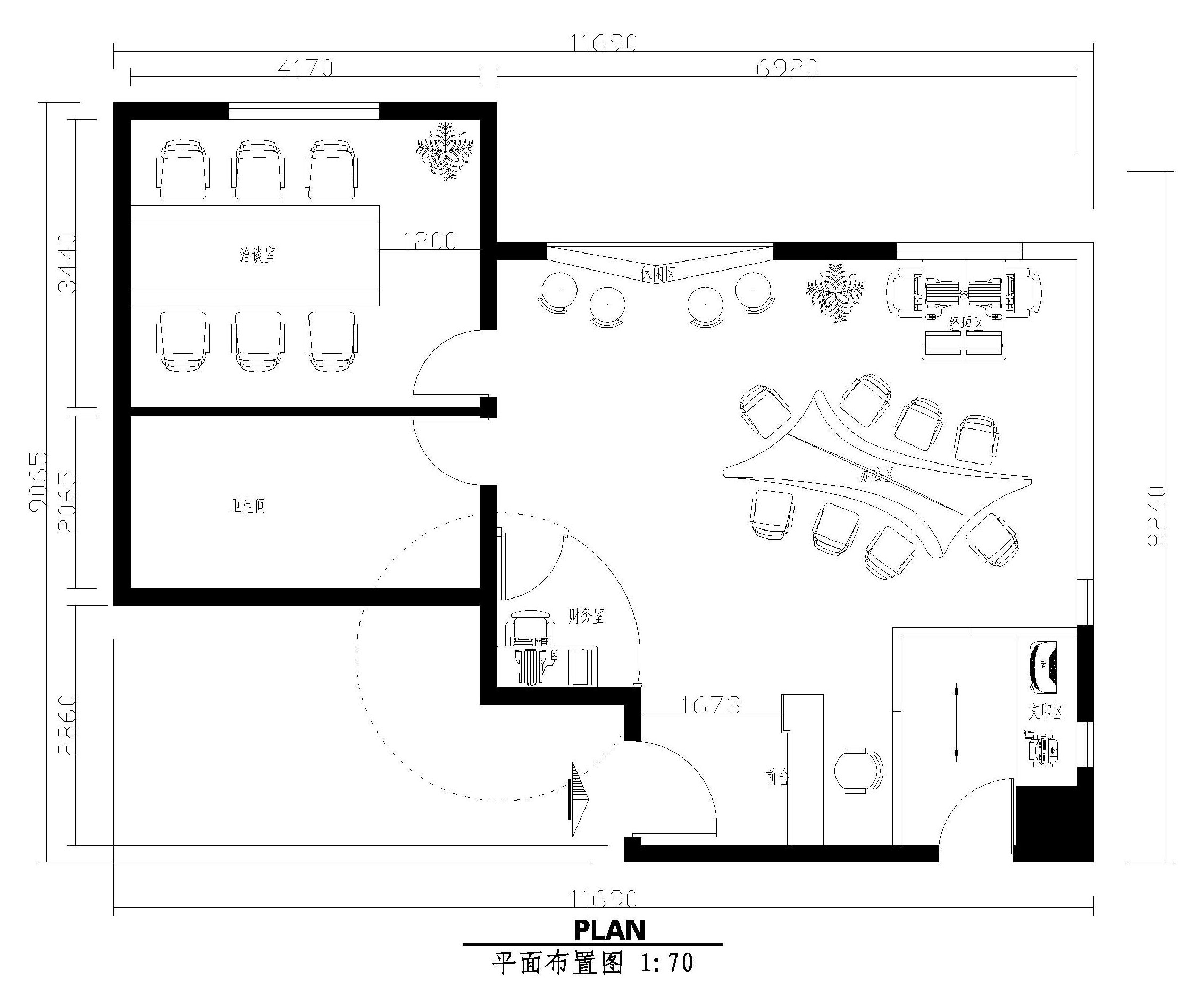
- 裝修面積 :200平米
- 工程地址 :北京市海淀區盈科大廈
- 設計風格 :現代創意
在線咨詢 咨詢熱線:
010-52479150

北京曼聯傳媒有限公司位于中國的首都,政治、文化中心,主要經營項目為: 商標設計 企業形象設計 廣告策劃 廣告制作 其他廣告服務 其他創意設計,以"誠實守信,客戶至上"為原則,而在產品方面又以"品質為本,精益求精"作為自己的實踐標準,力求給客戶提供全方位優質服務的同時,也使企業得到長久發展。
項目規劃設計 THE PROJECT DESIGN

設計師觀點
現代簡約風格飾品是所有風格中最不拘一格的一個。一些線條簡單,設計獨特甚至是極富創意和個性的飾品都可以成為現代簡約風格中的一員。本案設計以灰、白、紅三個經典色調為主題色,色彩對比鮮明,給辦公環境增添了不少創意。
客戶都在看 CUSTOMERS ARE WATCHING