魏老香辦公室裝修
項目概況 PROJECT OVERVIEW
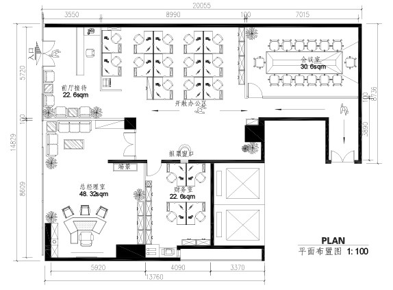
- 裝修面積 :400
- 工程地址 :北京市通州區馬駒橋商業街2號
- 設計風格 :現代創意
在線咨詢 咨詢熱線:
010-52479150

?魏老香餐飲管理(北京)有限公司,旗下擁有加盟連鎖店面350余家,市場覆蓋華北、華東、華中、東北等全國30個省市自治區,是中國火鍋領域實力強勁的新銳品牌。
項目規劃設計 THE PROJECT DESIGN

設計師觀點
現代簡約并不是缺乏設計要素,它是一種更高層次的創作境界。在室內設計方面,不是要放棄原有建筑空間的規矩和樸實,去對建筑載體進行任意裝飾。而是在設計上更加強調功能,強調結構和形式的完整,更追求材料、技術、空間的表現深度與精確。用簡約的手法進行室內創造,它更需要設計師具有較高的設計素養與實踐經驗。需要設計師深入生活、反復思考、仔細推敲、精心提煉,運用最少的設計語言,表達出最深的設計內涵。去繁存簡,在滿足功能需要的前提下,將空間、人及物進行合理精致的組合,用最洗練的筆觸,描繪出最豐富動人的空間效果,這是設計藝術的最高境界。
客戶都在看 CUSTOMERS ARE WATCHING